枣庄拓宇置业有限公司世范嘉苑(一标段住宅)项目规划核实批后公告
发布日期: 2025-10-16

公示项目名称:枣庄拓宇置业有限公司世范嘉苑(一标段住宅)项目规划核实批后公告

公示类别:批后公示

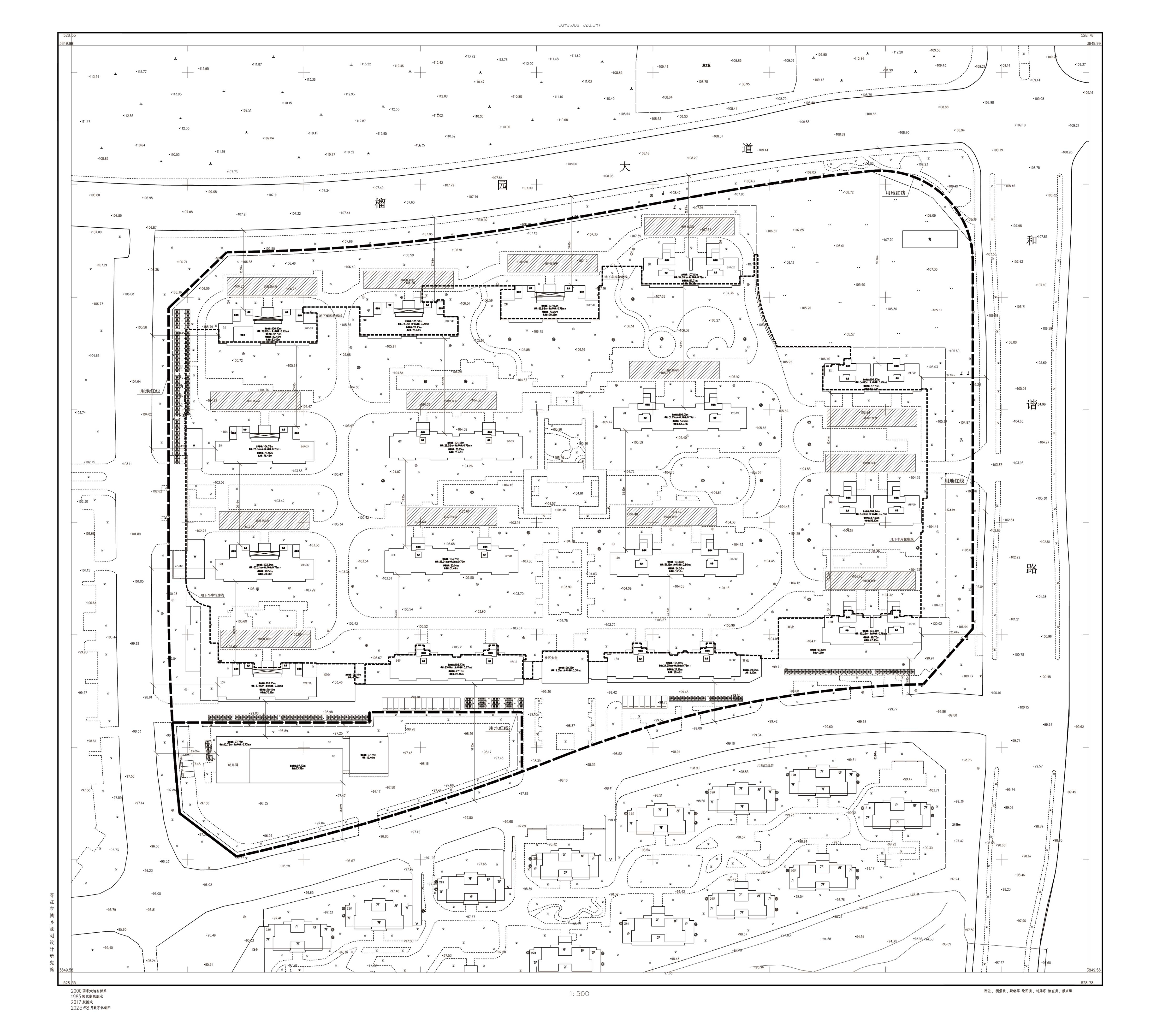
项目概况:1、项目名称:世范嘉苑(一标段住宅)

2、建设单位:枣庄拓宇置业有限公司

3、项目位置:薛城区榴园大道北侧、和谐路西侧、张山南路北侧、张山一路东侧

4、建设工程规划许可证号:建字第370403202100053号、370403202500024号

5、主要经济技术指标:总建筑面积211014.84平方米,住宅143974.02平方米,商业2999.75平方米,公建配套3625.77平方米,幼儿园3985.54平方米,地下储藏室15029.12平方米,地下大堂236.52平方米,地下非机动车库1255.72平方米,地下车库39908.41平方米。

公示地点:枣庄市自然资源和规划局网站 http://szrzyhghj.zaozhuang.gov.cn/



图.jpg 世范嘉苑(一标段住宅)-土地核验与规划核实结果文件 (1).pdf